This property is not currently available. It may be sold or temporarily removed from the market.

Cleeve Drive

£1,650 pcm
  • Type: Semi-Detached House
  • Availability: Let
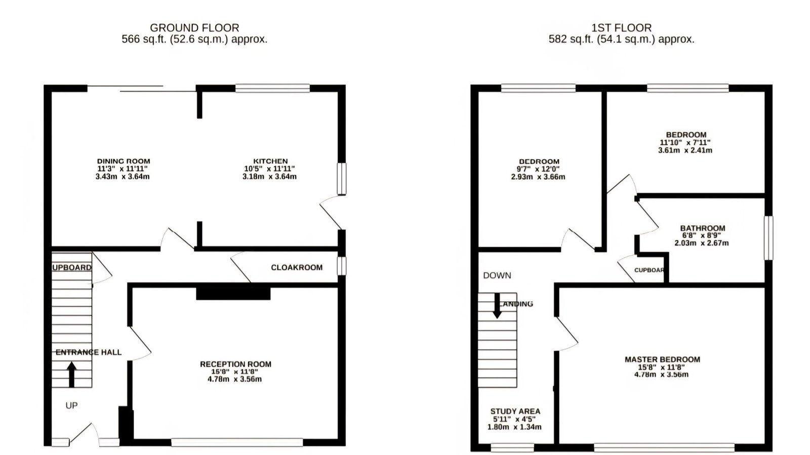
  • Bedrooms: 3
  • Bathrooms: 2
  • Reception Rooms: 1
  • Parking: Driveway
  • Outside Space: South Facing Garden
  • Council Tax Band: D
  • Furnished: Unfurnished
  • Deposit: £1,903
  • Available: Now
  • Make Enquiry
  • Floorplan
  • View Brochure
  • View EPC
  • Virtual Tour
  • Utilities & More

Property Summary

I'm thrilled to offer this fantastic three-bedroom home on Cleeve Drive (BS49 4NW), perfectly set up for a family looking to put down roots in North Somerset.

The property itself is a real gem, featuring large, bright rooms and ample storage.

The heart of the home is the spacious open-plan kitchen-diner, which flows beautifully through patio doors out to a large, private lawned garden, ideal for kids and entertaining.

And a large separate living room for cosying down in the evenings.

The three bedrooms are all great-sized doubles, complemented by a good-sized main bathroom and a handy downstairs WC.

Cleeve Drive has ample parking with 2 spaces on the private driveway as well as a good size garage.

The location couldn't be better. Cleeve is a friendly, sought-after village known for its great local schools and community atmosphere.

There is easy access to the M5 and Bristol Airport, and local shops are close by.

This bright, unfurnished house is available from October 2025.